"Safety First, Quality Always"
Toll Free: 1-877.884.2267
royal@royalcamp.com
Summit Camps
Smithers, BC.
CONTACT
Services & Quotes
Health & Safety
Lodges
Indigenous Engagement
Careers
Supply Chain
Summit Camps
Contact & Quotes
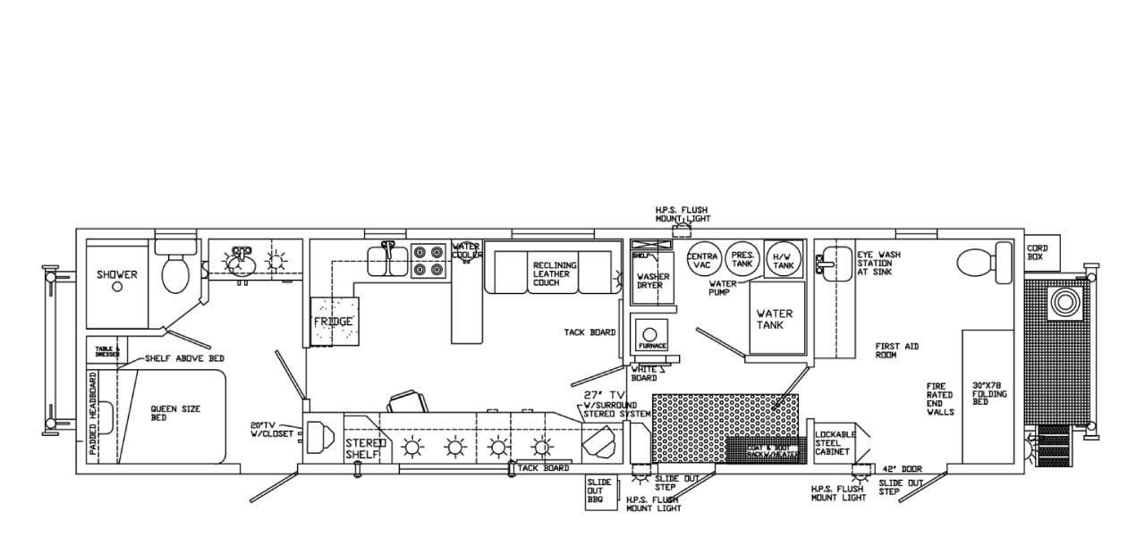
Specialty Units...... RCS Medic
Features
1
Medic Living Quarter
2
Treatment room with 42” door
3
Central air conditioning
4
Satellite TV
Download a PDF
Plan Overview